저번글에서 말했든 이번글에는 단독주택중 다중주택과 다가구주택에 대해서 설명을 할려고 합니다. 요즘 전세사기로 인해 다가구주택 또는 점포주택(근린생활시설+다가구주택)은 전세를 놓기가 매우 힘든 상황입니다.
임차인의 전체부채를 확인 후 대출을 해주기 때문에 전세대출금의 한계가 있으며 앞으로 건물주의 부채비율까지 확인하여 전세대출을 해줄려고 하기 때문에 더더욱 다가구주택으로 수익을 내기는 어려워질거 같습니다.
그래서 인지 요즘은 주인세대가 있는 원룸등으로 수입을 낼려고 하며 기존건물들도 월세로 전환할려고 하거나 원룸만을지어서 월세수입을 올릴려고하는 움직임이 있습니다.
다가구주택 건물주들의 고충으로는 이자 및 재산세, 수입도 별로이며 나중에 전세보증금을 반환할 때 반환을 못하면 전세사기로 연류될수 있다라는 점과 임차인들이 2억이 넘으면 전세를 안들어 올려고 하므로 신축건물을 지었을 때 준공시 받은 근저당대출 상환도 얼마 못하는 상황이 되었습니다.
이런상황이 앞으로 계속된다면 택지에 다가구주택필지 분양받은 분들은 건물을 더 못지을거고 기존 다가구건물주분들도 다음전세 입주자를 못찾은 경우가 생길것이므로 더 이상 못버티는 상황이 될것입니다.
이런것을 봤을 때 전세물건은 점점 없어질거고 월세만 오르는 상황이 될것입니다.
물론 아파트 전세시장은 조금 다른 차원이니 그것은 다르게 판단하셔야 할거 같습니다.
그렇다고 낙담만 할수 없고 정책은 항상 어떻게 바뀔지 모르니 기본 개념과 흐름을 알고 있어야 나중에 기회가 왔을 때 잡을수 있을거라 생각합니다.
건축법에 의한 다중, 다가구주택의 정의
다중주택: 다음의 요건을 모두 갖춘 주택
1) 학생 또는 직장인 등 여러 사람이 장기간 거주할 수 있는 구조로 되어 있는 것
2) 독립된 주거의 형태를 갖추지 않은 것(각 실별로 욕실은 설치할 수 있으나, 취사시설은 설치하지 않은 것을 말한다)
3) 1개 동의 주택으로 쓰이는 바닥면적(부설 주차장 면적은 제외한다. 이하 같다)의 합계가 660제곱미터 이하이고 주택으로 쓰는 층수(지하층은 제외한다)가 3개 층 이하일 것. 다만, 1층의 전부 또는 일부를 필로티 구조로 하여 주차장으로 사용하고 나머지 부분을 주택(주거 목적으로 한정한다) 외의 용도로 쓰는 경우에는 해당 층을 주택의 층수에서 제외한다.
4) 적정한 주거환경을 조성하기 위하여 건축조례로 정하는 실별 최소 면적, 창문의 설치 및 크기 등의 기준에 적합할 것
다가구주택: 다음의 요건을 모두 갖춘 주택으로서 공동주택에 해당하지 아니하는 것을 말한다.
1) 주택으로 쓰는 층수(지하층은 제외한다)가 3개 층 이하일 것. 다만, 1층의 전부 또는 일부를 필로티 구조로 하여 주차장으로 사용하고 나머지 부분을 주택(주거 목적으로 한정한다) 외의 용도로 쓰는 경우에는 해당 층을 주택의 층수에서 제외한다.
2) 1개 동의 주택으로 쓰이는 바닥면적의 합계가 660제곱미터 이하일 것
3) 19세대(대지 내 동별 세대수를 합한 세대를 말한다) 이하가 거주할 수 있을 것
투자로서의 다중주택

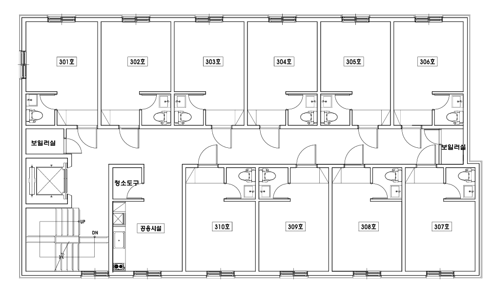
위 평면은 32개의 실과 공용실 하나로 구성되어 있는 다중주택으로 상담해드리고 실제로 운영하고 있는 다중주택입니다.
다중주택의 장점으로는 다가구택에 비해 주차대수가 적다는점입니다.
다중주택은 단독주택에 속하므로 시설면적 150m2이하까지는 1대 150m2초과하는 100m2당1대를 더한 대수로 판단합니다. 즉 [1대+{(시설면적-150㎡)/100㎡}]
하지만 다가구택은 주택건설기준 등에 관한 규정 제27조 제1항에 따라 산정된 주차대수로 하되 세대,가구,호실당 주차대수 1대 이상이 되도록 하는 경우가 많아 호당1대라고 판단하는게 편합니다.
법개정전에는 다중주택은 330m2(100평)이하 까지만 설치가 가능했으며 필로티완화 규정이 없어 크게 관심을 받지 못했습니다.
하지만 지금 660m2(200평)까지 지을수 있으며 다가구주택은 19세대수까지 지을수 있지만 다중주택은 세대수 규정이 없는게 큰 장점입니다.
단점이라면 고시원처럼 공용주방을 설치해서 개별실에 취사시설이 안된다는 점입니다.
여기서 취사는 싱크대,렌지 두개중 하나라도 설치되었을때 취사라고 합니다.
하지만 고시원을 해보신 분들은 아시겠지만 이것은 큰 단점이라고 볼수 없을것입니다.
요즘 원룸수요자들은 음식을 잘 안해먹으며 배달음식과 인스턴트로 한끼를 때우다보니 각 실에 전자렌지만 설치해두면 별다른 불편함을 못 느낍니다.
그럼 고시원과 다중주택이 뭐가 다른지 궁금증이 생길수 있으니 간단하게 설명하자면 고시원은 근린생활시설로 주거지역에서는 500m2이하까지만 지을수 있으며 주차대수는 근린생활시설에 속하므로 다가구주택보다는 적게 설치가 가능합니다.
하지만 소방관련시설이 까다롭습니다. 소방준공외에 소방완비까지 받아야 고시원업신고가 가능하므로 방염제품시공 간이스프링쿨러설치 시각경보기 유도등 탈출구(계단하나있을 경우 설치)등 규정이 까다롭습니다.
여기에 간이스프링쿨러 대상은 소방관리자3급을 배치해야하므로 매월 부가적인 지출이 생기게됩니다.
하지만 다중주택은 이런게 다 필요없습니다. 감지기와 소화기만 설치하되면 됩니다.
복잡한 절차도 없고 소방관리자 배치도 없어 지출이 줄어듭니다.
여기서 눈치가 빠르신분들은 아셨겠지만 다중주택으로 수입을 낼수 있는곳은 고시원으로 수입을 낼수 있는곳과 동일하다라는 것을 알수 있을겁니다.
고시원보다도 저렴한 금액으로 지을수 있으며 소방에대한 부담도 적으니 고시원으로 수입을 내셨던 분들의 대안점이라고 볼수 있을겁니다.
그리고 최상층에 주인세대도 설치가 가능하다보니 본인이 직접 관리도 하면서 수입을 창출해낼수 있을겁니다.
제가 상담해드리고 다중주택을 지어서 수입을 내신 분들을 보면 방사이즈를 작게하여 원룸갯수가 30개이상 나오게하고 옵션으로는 각실에 냉장고 전자렌지만 설치합니다. TV는 핸드폰을 더많이 하므로 설치를 안하신다는 분들도 봤으며 TV는 설치는하되 수신료가 나가신다고 TV수신은 안하시고 핸드폰연결해서 화면만 크게 볼수 있게 해주신 분도 봤습니다.
일반적으로 생각하면 이런곳에 누가 들어와서 사용할까라고 생각 할수 있겠지만 이건 다 내기준으로만 판단하는것인거 같습니다.
항상 필요한곳엔 수요가 따른다고 생각합니다. 각실당 60,70만원씩은 못받겠지만 40만원은 받을수있다고 생각하시고 접근하시면 생각이 쉽게 바뀌실겁니다.
주의점
다중주택은 지자체별로 기준을 따로 둘수 있게 되어 있습니다. 다중주택이 많이 생긴곳은 주차가 부족하다보니 법에도 없고 지자체 기준도 없는데 급하게 자기들끼리 협의후 규정이라고 하고 안해줄려고 하는 경향이 있습니다.
고시원이랑 도시형생활주택을 생각해보시면 예전에는 주차대수 및 지역에대한 규제도 없었는데 많은 사람들에 비해 주차가 부족하고 불특정 다수가 살다보니 주거지역환경이 안좋아져서 자꾸 규제를 만들었듯이 다중주택도 강화가 될수 있습니다.
아직까지 별다른 기준을 적용하는 곳이 없을때 지금이 기회일수있습니다.