이번글에서는 얼마전 상담해서 허가를 득하고 현재 공사중인 기숙사에 대해서 설명을 할려고 합니다.
산업시설내에 있는 지원시설부지로서 1,2층은 근린생활시설 3,4층은 도시형생활주택(다세대 원룸형) 5층은 오피스텔의 복합건축물이 였는데 2층 근린생활시설을 오랫동안 공실로 있어 수익을 낼수 없는 상황이였습니다.
건축주는 2층에서 무엇인가 수익을 낼수있다면 용도변경을 적극적으로 고려해본다 하여 현장조사 및 법규검토를 하였습니다.
다행히 현장조사 결과 불법층축 및 다른 불법사항은 없었으므로 현장에서 안되는 조건은 없었습니다.
문제는 법규적 체크사항만 남은 상황이였습니다.
일반건축물인 근린생활시설을 공동주택으로 용도변경하는 것은 여러 법을 검토해야 하므로 매우 복잡하고 어떤법에서 문제가 생겨 불허가 날수도 있는 상황이므로 건축주에게 확률은 90%이상이지만 용도변경을 득한다고 확신은 할수 없다라는 것을 인지시킨 후 일을 진행하였습니다.

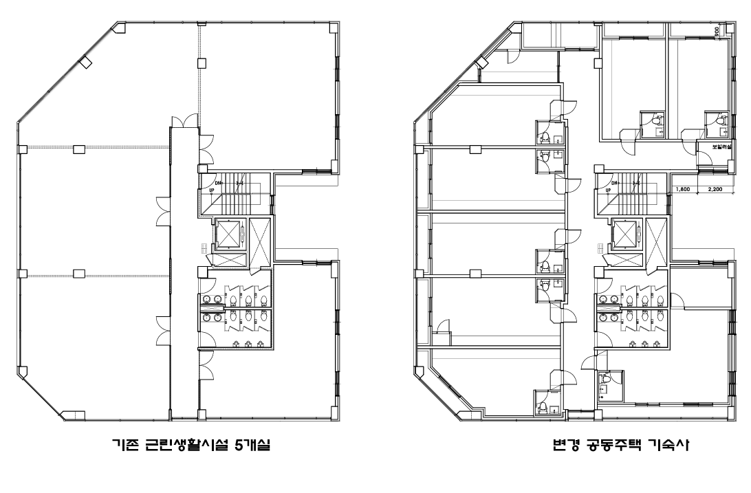
근린생활시설을 공동주택 기숙사로 용도변경
2층에 수익을 낼수 있는 용도를 체크하였는데 일단 건축법 시행령 47조 방화에 장애가 되는 용도의 제한에서 일단 3.4층이 공동주택이였으므로 2층을 고시원으로 용도변경은 불가 하였습니다. 다행히도 최근 지구단위지침이 변경되어 허용용도에 기숙사가 포함되었습니다.
그럼 여기서 수익을 낼수 있는 것은 기숙사인데 임대형 기숙사는 불가하므로 일반기숙사로 접근하였습니다.
여기서 일반기숙사와 임대형 기숙사의 정의에 대해서 간단히 설명하면 아래와 같습니다.
기숙사: 다음의 어느 하나에 해당하는 건축물로서 공간의 구성과 규모 등에 관하여 국토교통부장관이 정하여 고시하는 기준에 적합한 것. 다만, 구분소유된 개별 실(室)은 제외한다.
1) 일반기숙사: 학교 또는 공장 등의 학생 또는 종업원 등을 위하여 사용하는 것으로서 해당 기숙사의 공동취사시설 이용 세대 수가 전체 세대 수(건축물의 일부를 기숙사로 사용하는 경우에는 기숙사로 사용하는 세대 수로 한다. 이하 같다)의 50퍼센트 이상인 것(「교육기본법」 제27조제2항에 따른 학생복지주택을 포함한다)
2) 임대형기숙사: 「공공주택 특별법」 제4조에 따른 공공주택사업자 또는 「민간임대주택에 관한 특별법」 제2조제7호에 따른 임대사업자가 임대사업에 사용하는 것으로서 임대 목적으로 제공하는 실이 20실 이상이고 해당 기숙사의 공동취사시설 이용 세대 수가 전체 세대 수의 50퍼센트 이상인 것
용도는 결정이 났으므로 이제부터 세부 항목들을 검토해야 했습니다.
법조항까지 나열하면서 설명하면 너무 복잡하여 체크사항 위주로 설명을 하겠습니다
기존건축물이 다행히도 외벽단열재가 준불연단열재로 시공이 되어 외벽과 창호를 안 건드리는 조건으로 접근하였습니다. 외벽이 변경되면 건물 전체단열재를 현행 법에 맞는 준불연단열재로 교체시공해야 하는 경우가 발생하므로 외벽과 창호는 변경이 없는 것으로 접근하였습니다.
인접대지경계선으로부터 1.5m이하에 있는창은 방화에 지장이 없는 창호를 설치하여야 하는데 다행히도 기존건물에 스프링클러가 설치되어 창호로부터 60cm 이내 설치가 가능하여 해당사항이 없었습니다. 이때 주의할점은 용도변경 해당층만 1.5m를 적용하는 것이 아니라 건물 전체층을 적용해야하므로 건물 전체 스프링클러를 60cm이내에 설치가 되어야 합니다.
나머지 법들은 일반적인 것이므로 간단히 체크항목만 설명하자면 소방관진입창설치 관련체크 외벽열관류율체크 외벽창호열관류율체크 직통계단 2개소 체크 주차대수 체크 복도의 너비체크 칸막이벽차음 바닥차음 칸막이벽 내화구조등이 있습니다.
기숙사 건축기준 중 다음 사항을 체크
기숙사는 개별 실을 구분소유할 수 없는 건축물로서 다음 각 호의 구분에 따른다.
1. 일반기숙사인 경우: 다음 각 목의 기준에 적합하여야 한다.
가. 기숙사 개인공간(침실 등 개인이 거주하는 공간. 이하 같다)을 지하층에 두지 말 것
나. 화장실과 세면ㆍ목욕시설, 채광ㆍ환기 설비, 냉ㆍ난방 설비 또는 기구 등을 적절하게 갖출 것
다. 2층 이상의 층으로서 바닥으로부터 높이 1.2미터 이하 부분에 여닫을 수 있는 창문(0.5제곱미터 이상)이 있는 경우 그 부분에 높이 1.2미터 이상의 난간이나 이와 유사한 추락방지를 위한 안전시설을 설치할 것
라. 복도 최소폭은 편복도 1.2미터 이상, 중복도 1.8미터 이상으로 할 것
마. 실간 소음방지를 위하여 「건축물의 피난ㆍ방화구조 등의 기준에 관한 규칙」 제19조에 따른 경계벽 구조 등의 기준과 「소음방지를 위한 층간 바닥충격음 차단 구조기준」에 적합할 것
이제부터 중요한 항목입니다.
기숙사의 정의에서 보면 구분소유된 개별 실(室)은 제외한다. 라는 문구가 있습니다
이 문구로 인해 기존 전유부가 나누어져있던 호수를 1개의 호수로 건축물대장을 변경을 먼저해야 합니다.
그래서 1호의 실로 만들고 1호의 실에 각 방들이 있는 개념으로 만들어야 합니다.
즉 기존 여러개의 호수을 1개의 호수로 전유부 합병을 먼저 해야합니다.
한마디로 표현하자면 하숙집을 생각하면 이해하기 편합니다. 하숙집은 1가구인데 각 침실들이 침실1 침실2 침실3이되는 개념이라고 생각하면 됩니다.
일반기숙사의 정의에서 보면 학교 또는 공장 등의 학생 또는 종업원 등을 위하여 사용하는 것 이라는 문구가 있습니다.
이것은 지자체 마다 해석에 차이가 있습니다.
이용하는 사람들이 학생이거나 주변공장의 종업원이면 된다라고 해석하는곳과 학교 또는 공장 등의 학생 또는 종업원 등을 위한 시설이므로 학교와 공장소유자만이 기숙사를 운영할수있다라고 해석을 하는 곳이 있습니다. 이때는 해당층의 소유권을 공장을 운영하는 분으로 바꾼다던지 건물주와 공장을 운영하는분과 소유권을 공동으로 소유하게 하여 해당 법을 만족하게 하면 됩니다.
그리고 공유부면적과 전유부 면적의 변동이 없어야 합니다.
마지막으로 제일 중요한 것은 외벽 및 외부창호가 변하지 않게하고 내부 대수선이 없게하면 용도변경 신고건으로 처리가 가능하므로 착공 및 준공절차가 없으므로 매우 수월하게 진행할수 있습니다.
대수선을 수반하게 되면 허가건이 되어 준공절차를 거치게되므로 마감재료 및 방화문 등 준공시 모든 사항을 다시 체크하게 되는 사항이 발생하게 됩니다.
이번 상담건은 두달이라는 시간이 걸리긴 했지만 굉장히 특수한 상황이여서 운이 좋게 잘 해결된것이고 매우 어려운 용도변경 중 하나입니다.
하지만 이런것도 좀더 열정을 가지고 상담을 하고 고민을 하면서 진행을 한다면 불가능하지 않다라고 생각합니다.