우리가 소위말하는 고시텔, 리빙텔, 원룸텔등의 이름으로 불리는 고시원이라는 시설은 높은수익률로 수익형 부동산에서 관심을 받는 대표적인 건축물입니다.
예전에는 공용주방과 공용화장실을 둬서 운영을 하였지만 지금은 법이 바뀌어 개별화장실 설치가 가능하며 개별취사는 허용되지 않습니다.
제가 있는곳을 기준으로 설명들이자면 요즘추세는 6평에서 7평사이로 넓게 실을 구성하고 또는 복층형으로 설치하고 있습니다.
준공후 5년이지나면 오피스텔로 용도변경을 하기위해 처음지을 때 오피스텔기준에 맞춰짓고 있습니다. 이렇게 하는이유는 선택적 사항으로 5년후 각 실별로 개별 취사시설을 설치할수있으며 일부는 전세로 전환하여 대출금을 상환하여 이자를 줄이고 소방서에서의 고시원 소방시설 점검등으로부터 부담감을 줄이기 위해 신축건물은 이렇게 짓고 있습니다.
오피스텔은 실당 1대의 주차를 확보하여야하나 위와같은 방법으로 용도변경을 할 경우 추가로 주차를 확보하지 않고 용도변경을 할수 있습니다.
여기서는 500m2이하의 근린생활시설의 고시원을 위주로 설명할겠습니다.
고시원같은 다중시설은 지자체별로 없던 규제도 만들어 내서 규제를 하는 실정입니다.

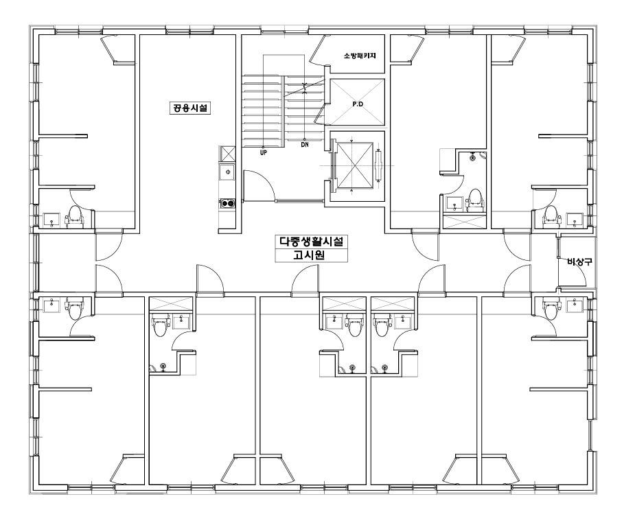
건축법에 의한 고시원의 정의, 건축기준
건축법에 의한 고시원의 정의
2종근린생활시설의 다중생활시설(「다중이용업소의 안전관리에 관한 특별법」에 따른 다중이용업 중 고시원업의 시설로서 국토교통부장관이 고시하는 기준과 그 기준에 위배되지 않는 범위에서 적정한 주거환경을 조성하기 위하여 건축조례로 정하는 실별 최소 면적, 창문의 설치 및 크기 등의 기준에 적합한 것을 말한다. 이하 같다)로서 같은 건축물에 해당 용도로 쓰는 바닥면적의 합계가 500제곱미터 미만인 것
숙박시설의 다중생활시설(제2종 근린생활시설에 해당하지 아니하는 것을 말한다)
즉, 고시원은 500m2이하일 경우 2종근린생활시설의 다중생활시설에 해당되며 이거보다 큰경우에는 숙박시설의 다중생활시설에 해당됩니다.
숙박시설에 해당되면 규제가 더 많아지므로 주거지역에 설치를 할수없으므로 일반적으로 500m2이하로 주거지역에 설치합니다.
고시에의한 건축기준
다중생활시설은 「다중이용업소의 안전관리에 관한 특별법」에 따른 다중이용업 중 고시원업의 시설로서 다음 각 호의 기준에 적합한 구조이어야 한다.
1. 각 실별 취사시설 및 욕조 설치는 설치하지 말 것(단, 샤워부스는 가능)
2. 다중생활시설(공용시설 제외)을 지하층에 두지 말 것
3. 각 실별로 학습자가 공부할 수 있는 시설(책상 등)을 갖출 것
4. 시설내 공용시설(세탁실, 휴게실, 취사시설 등)을 설치할 것
5. 2층 이상의 층으로서 바닥으로부터 높이 1.2미터 이하 부분에 여닫을 수 있는 창문(0.5제곱미터 이상)이 있는 경우 그 부분에 높이 1.2미터이상의 난간이나 이와 유사한 추락방지를 위한 안전시설을 설치할 것
6. 복도 최소폭은 편복도 1.2미터이상, 중복도 1.5미터이상으로 할 것
7. 실간 소음방지를 위하여 「건축물의 피난·방화구조 등의 기준에 관한 규칙」제19조에 따른 경계벽 구조 등의 기준과 「소음방지를 위한 층간 바닥충격음 차단 구조기준」에 적합할 것
8. 범죄를 예방하고 안전한 생활환경 조성을 위하여 「범죄예방 건축기준」에 적합할 것
지방자치단체의 장은 제2조의 기준에 위배되지 않는 범위 내에서 다중생활시설의 최소실 면적, 창 설치 등의 기준을 정하여 권장할 수 있다. 이 문구때문에 지자체별로 규제를 만듭니다.
이밖에도 소방과 완비관련된 사항들도 많지만 간략하게 설명하면 고시원은 계단실이 한군데 일 경우 건물최장길이의 1/2이상의 거리에 탈출구를 설치하여야 합니다.
예전에는 이 탈출구를 방화문으로 설치하여 복도에 빛이 안들어와 어두운경우도 있었지만 요즘은 유리문도 사용이 가능하여 채광에 대한 불편함을 해소할수 있습니다.
소방시설로는 간이스프링쿨러(캐비닛형포함), 유도등, 유도선, 시각경보기, 휴대용비상조명, 감지기, 소화기,경종등 각종 소방설비가 설치됩니다.
완비를 받기위해서는 화장실문은 방염제품, 실내장식도 방염제품을 사용하여야 하며 소방업체과 협의 후 시공하여야 완비받을 때 수월합니다.
5층에 설치될 경우 옥외피난계단이 필요하여 일반적으로 고시원은 4층까지만 설치합니다.
투자로서의 고시원
다가구주택의 원룸보다는 주차장을 적게 설치할 수 있어 주택을 지을수 없는 곳에는 고시원과 오피스텔을 복합으로 지어서 수입을 내고 있습니다.
수익률을 극대화 하시는 분들중에서는 오피스을 건축법에는 없지만 라이프오피스텔로 설치하여 원룸처럼 수익을 내시는 분들도 있습니다.
라이프오피스텔은 불법은 아니지만 공무원들의 입장에서는 불법처럼 보이므로 건축허가를 득할 때 어려움을 겪고 있습니다.
여기서 간단히 라이프오피스텔을 설명하자면 근린생활시설의 사무실을 원룸처럼 사용하게 하는것입니다.
간단히 생각하면 지식산업센타 원룸형태의 실을 생각하시면 됩니다.
내부에 화장실이 설치되며 간단한 주방은 탕비실이 되고 바닥난방은 설치가안되며 냉,난방기로 난방을 합니다.
항상 모든게 많아지면 없었던 법도 생겨나 규제가 점점 심해집니다. 관심을 가지시고 기회가 오면 기회를 놓치지 마세요.
예전 도시형생활주택 초창기때 2%대로 공사자금대출을 해주고 장기로 빌려줬으며 주차는 현재의 1/2수준만 설치할때가 있었습니다. 이때 기회를 잡은 사람들은 같은 면적의 땅에 건물을 지어도 수익률에서 어마어마한 차이를 만들어 냈습니다.
필자도 이때 아무것도 몰라 이런걸 놓친 것을 후회하고 있습니다. 언젠가 다시 기회가 올 때 잡기위해서는 돈이 없다고 포기하지 마시고 지식을 쌓으셔서 꼭 잡으시길 바랍니다.